株式会社ファインドホーム > (戸建(売買))路線・駅から探す > 小田急電鉄小田急江ノ島線 > 高座渋谷駅 > 大和市福田 戸建て > 物件詳細
徒歩7分の距離に大和市立下福田中学校があるのも魅力。相場としても妥当な、4,180万円の物件となっています。足元から暖まる床暖房が付いています。新婚さんの新しい暮らしを応援します。大和市エリアや小田急江ノ島線高座渋谷付近で、お客様のご希望条件に合った一戸建てをご紹介します。まずはお問い合わせください。











(※元利均等方式 金利5.00%まで ※返済年数5~50年まで入力できます)
(※ボーナスは年2回で計算しています。1000万円まで入力できます)
(※物件購入時、その他諸費用が発生する場合がございます)
| 所在地 | 神奈川県大和市福田 | ||
|---|---|---|---|
| 交通 | |||
| 間取り/詳細 |
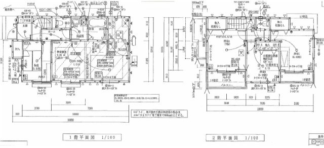
4LDK/ LDK 16.2帖/洋室 7.0帖/洋室 6.6帖/洋室 5.1帖/和室 5.2帖 |
建物面積(坪数) | 93.98㎡(28.42坪) |
| 価格 | 4,180万円 | ||
| 駐車場/月額料金 | -/- | ||
| 土地の敷金/保証金 | -/- | 借地料/借地期間 | -/- |
| 土地権利 | 所有権 | 土地面積(坪数) | 127.18㎡(38.47坪) |
| 傾斜地部分面積 | - | 路地状敷地 | - |
| 私道負担面積/セットバック | -/無 | 高圧線下面積 | - |
| 地目/地勢 | 宅地/平坦 | 接道状況 | 一方(西 公道 4.5m 間口 8.4m) |
| 建ぺい率/容積率 | 50%/100% | 用途地域 | 第一種低層住居専用 |
| 都市計画 | 市街化区域 | 種別/構造 | 中古一戸建/木造 |
| 階建 | 2階建 | 築年月(築年数) | 2024年 5月 (築1年) |
| 総区画数/販売区画数 | 1区画/1区画 | 向き | - |
| 現況 | 居住中 | その他の法令上の制限 | - |
| 取引態様/引渡時期 | 専任媒介/相談 | 建築確認番号 | - |
| 物件番号 | 100013619 | 取引条件の有効期限 | 2026年01月30日 |
| 設備条件 |
|
||
| 備考 | 大和市立下福田小学校が通学範囲内、学校まで徒歩9分。浴室乾燥機のあるお風呂場は洗濯物を干すときにも便利です。建物面積93.98㎡もありますので、ご検討ください。地域に特化したファインドホームが取り扱う不動産情報をご紹介致しますので、詳細情報が気になる方は、お気軽にお問い合わせくださいませ。 | ||
| 取扱会社 |
|
||
| QRコード |
このQRコードを読み取ることで、スマホでも物件情報を確認できます。 |
||
※地図上に表示される物件の位置は付近住所に所在することを表すものであり、実際の物件所在地とは異なる場合がございます。
大和市福田 戸建てに関するこだわり条件から探す