株式会社ファインドホーム > (店舗(賃貸))路線・駅から探す > 小田急電鉄小田急江ノ島線 > 湘南台駅 > ハークビル > 200
湘南台駅徒歩2分!メイン通りに面す!専有部分にトイレあり!エレベーターあり!飲食店不可!


※1. 仲介手数料は仮の価格となりますので、実際の価格に関してはお気軽にお問い合わせ下さい。
※2. 1か月を30日として計算しています。

| 所在地 | 神奈川県藤沢市湘南台2丁目5-4 | ||
|---|---|---|---|
| 交通 | |||
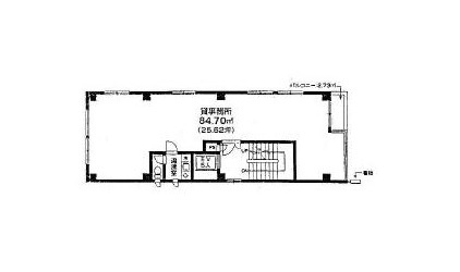
| 坪数(面積) | 25.62坪(84.70㎡) | ||
| 賃料/坪単価 | 35.5万円/1.39万円 | 管理費・共益費 | 44,000円 |
| 敷金/礼金/保証金 | 0ヶ月/1ヶ月/300万円 | 償却/敷引 | 30.00%/- |
| 更新料 | 1ヶ月(新賃料) | 権利金/雑費 | -/- |
| 造作譲渡金 | - | 駐車場/月額料金 | 無/- |
| 保険加入/料金 | 有/- | 保険名/保険期間 | -/- |
| 保証人代行義務 | - | 保証会社 | - |
| 保証会社詳細 | - | 向き | - |
| 築年月(築年数) | 1999年 4月 (築26年) | 契約期間 | 3年 |
| 種別/構造 | 店舗一部/鉄筋コンクリート | 用途地域 | - |
| 部屋/所在階/階建 | 200/1階/- | 総戸数 | - |
| 現況/引渡時期 | 空家/相談 | 取引態様 | 仲介 |
| 物件番号 | 72753274 | 取引条件の有効期限 | 2026年01月30日 |
| 設備条件 |
|
||
| 備考 | 湘南台駅徒歩2分!メイン通りに面す!専有部分にトイレあり!エレベーターあり!飲食店不可!湘南台駅徒歩2分!メイン通りに面す!専有部分にトイレあり!エレベーターあり!飲食店不可! | ||
| 取扱会社 |
|
||
| QRコード |
このQRコードを読み取ることで、スマホでも物件情報を確認できます。 |
||
※地図上に表示される物件の位置は付近住所に所在することを表すものであり、実際の物件所在地とは異なる場合がございます。
ハークビルに関するこだわり条件から探す